At Empire Design Consultancy LLC, we specialize in delivering high-quality architectural CAD drafting services designed to meet the needs of developers, architects, contractors, and design professionals.
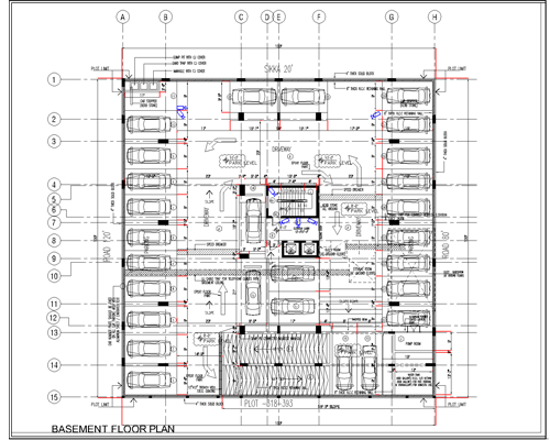
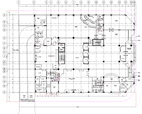
Architectural Shop Drawings, Floor Plans & Roof Plans
Exterior Elevations, Details, Sections & Plans
Millwork Plans, Elevations & Details
Window, Door, Finish Schedules, Stair Plans, Sections & Details
Reflected Ceiling Plans (RCPs) & Soffit Details

At Empire Design Consultancy LLC, we provide reliable and accurate Structural CAD Drafting services that support engineers, architects, and builders in delivering safe, code-compliant, and buildable structures.
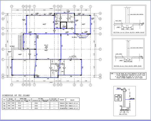
Structural Shop Drawings & Steel Structure Drawings
Foundation Plans & Framing Plans (Floor & Roof)
Structural Sections & Details
Reinforcement Plans & Rebar Detailing
Beam & Column Schedules

At Empire Design Consultancy LLC, we provide high-quality Civil CAD Drafting Services that support engineers, developers, contractors, and consultants in executing infrastructure and land development projects with precision and efficiency. From site layouts and grading plans to roadworks and utility networks, our CAD experts create accurate, code-compliant drawings that streamline planning, approval, and construction.
Site Development Plans, Grading, Drainage Plans, Irrigation Plans
Utility Layouts & Hardscape Design
Road, Pavement Design
Retaining Walls & Earthwork Details
Civil Schedules & Legends

At Empire Design Consultancy LLC, we provide precise and detail-oriented Interior CAD Drafting Services that transform concepts into construction-ready documents. Our team works closely with interior designers, architects, and contractors to deliver accurate 2D drawings that bring clarity, creativity, and coordination to every interior space.
Interior Elevations, Sections & Details
Millwork, Joinery Drawings, Finish Plans & Schedules
Furniture, Equipment Plans (FFE), Space Planning & Layouts
Reflected Ceiling Plans (RCPs), Lighting & Electrical Layouts
Door & Window Schedules

At Empire Design Consultancy LLC, we deliver comprehensive MEP (Mechanical, Electrical, and Plumbing) CAD Drafting Services to support contractors, consultants, and developers in executing coordinated and code-compliant building systems.
HVAC Drafting
Electrical Drafting
Plumbing Drafting
MEP Shop Drawings & Coordination Drawings
international standards (such as DM, ADM, ADDC, DEWA, and other authorities).

At Empire Design Consultancy LLC, we provide accurate and efficient CAD Conversion Services to help businesses modernize, archive, and streamline their design documentation. Whether you have hand-drawn sketches, scanned PDFs, old blueprints, or outdated file formats, our team converts them into clean, editable, and fully layered AutoCAD (.dwg) files ready for design, revision, and construction.
PDF to CAD Conversion
Paper/Blueprint to CAD Conversion
Image to CAD Conversion (JPG, PNG, TIFF, BMB)
Standardization, Layering & Hand Sketches to CAD Conversion
CAD Redrafting & Conversion

At Empire Design Consultancy LLC, we offer complete support for obtaining Dubai Municipality (DM) and Roads & Transport Authority (RTA) approvals essential for any construction or development project in Dubai. With in-depth knowledge of local regulations and approval procedures, we prepare and manage all required drawings and documentation to ensure smooth, timely, and hassle-free approvals.We prepare fully compliant design submissions for DM review, covering all architectural, structural, MEP, and landscape requirements. Our plans are crafted to meet the latest Dubai Municipality standards and ensure minimal revisions or delays.
Code-compliant drawings (Architectural, Structural, MEP, etc.)
Required documentation & technical reports
3D visuals when needed
Submission coordination and follow-up
Revisions as per DM feedback

For developments affecting roads, parking, signage, or infrastructure, we deliver detailed plans in line with RTA regulations. Our team ensures that all road access, parking layout, and traffic management plans meet the authority’s standards.
Access, egress, and parking layout plans
Traffic impact and signage design
Infrastructure layouts involving public roads
Submission and coordination with RTA engineers
Modifications and resubmissions as required
